Новая 3-спальная вилла в Фамагусте №188137
Дополнительно:
Описание:
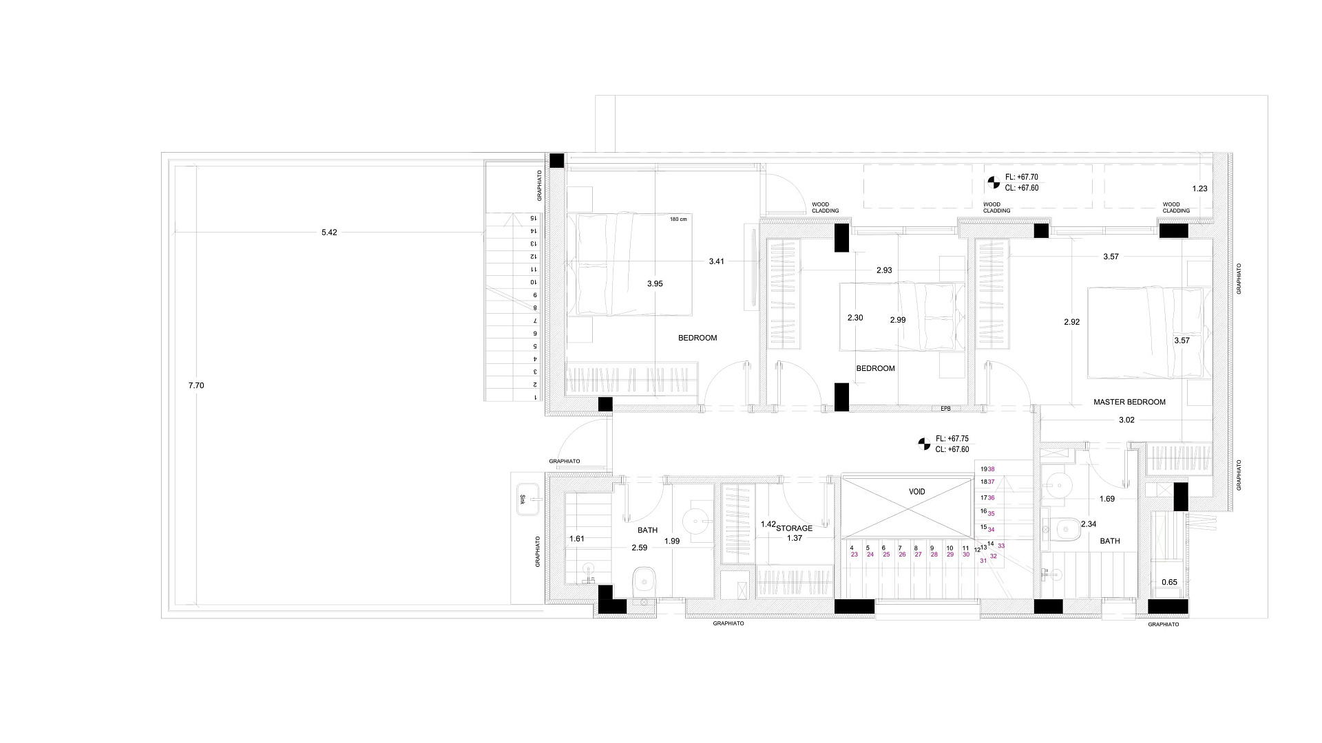
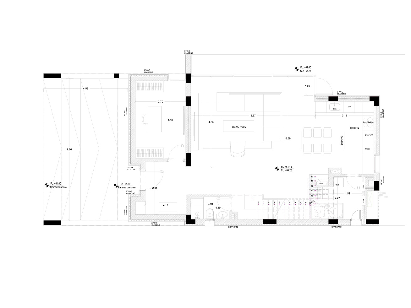
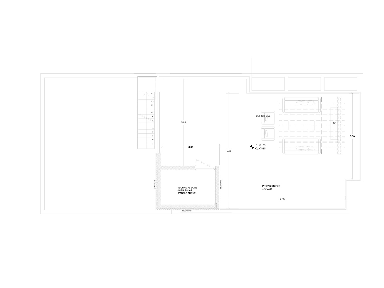
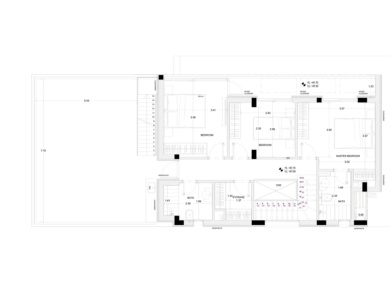
Продается новая 3 спальная вилла в элитном жилом комплексе, расположенном в Protaras, в 5 минутах езды от знаменитого пляжа, помеченного Голубым флагом- Fig Tree Bay. Проект состоит из 10 вилл, каждая из которых, благодаря современной архитектуре и передовым технологиям строительства, дарит ощущение бесконечного, комфортного отпуска. Собственный бассейн, террасы, ландшафтный дизайн, веранда на крыше и крытая парковка. Белые фасады способствуют еще большему настроению, а облицовка из натурального камня и дерева придает домашний и роскошный вид. Виллы расположены на холме, что дарит беспрепятственный панорамный вид.
Читать далее
Объект
№188137
Тип:
Вилла / Дом
Город:
Район:
Комплекс:
Застройщик:
Кол-во спален:
3
Ванных комнат:
3
Общая площадь:
376 м2
Жилая площадь:
191 м2
Площадь участка:
555 м2
Этажность:
3
Год постройки:
06/2026
Расстояние до моря:
950 м
Класс энергоэффективности:
A
860 000 EUR
+ VAT
860000
2 287
EUR/м2
Записаться на просмотр
Похожие предложения
1563 объекта
Показать все
Интересное
