Новая 2-спальная квартира в Никосии №186319
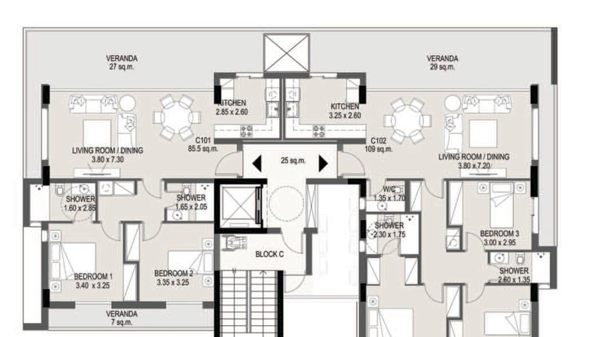
Продаются апартаменты в новом жилом проекте в Никосии, районе Aglantzia, всего в нескольких минутах от бизнес-центра и с легким доступом к шоссе Никосия — Лимассол. Проект идеально подходит для семей и частных лиц, желающих жить недалеко от центра города, в тихом районе, недалеко от школ и магазинов, а также с прямым доступом ко всем районам столицы. Тщательно спроектированные апартаменты предлагают комфорт и функциональность, а высокие стандарты качества строительства и материалов повышают уровень жизни. Энергетический сертификат класса А, звуко- и теплоизоляция, светодиодные светильники, кухонные столешницы из техногранита, деревянный пол высокого качества, камера видеонаблюдения у входа в здание, контролируемый доступ, озеленение территорий общественного пользования растениями, бронированная дверь в каждой квартире, индивидуальный солнечный водонагреватель для каждой квартиры, пол с подогревом, система Умный Дом, проводка для кондиционера, фотоэлектрические панели на крыше здания для экономии энергии для помещений общего пользования.
